Москва и МО: 8 (495) 60-20-100
Регионы РФ: 8 (800) 600-47-24
 
Обмеры: 3D сканирование, 3D модели, чертежи
Лазерное сканирование и подготовка обмерных чертежей квартиры Москве для целей дизайна интерьеров

Лазерное сканирование и подготовка чертежей квартиры для дизайна интерьера

01.04.2026 г.

Инженерное предприятие «НГКИ» оперативно выполнило небольшой проект по 3D обмерам и подготовке комплекта обмерных чертежей квартиры в Москве в районе ВДНХ с отображением всех строительных конструкций и инженерных коммуникаций. Заказчиком этих работ выступила одна из московских студий интерьерного дизайна.

Дизайнеры обратились в нашу компанию, поскольку мы имеем очень богатый опыт произведения точных 3D обмеров различных помещений и построения их обмерных 3D моделей и обмерных чертежей для целей подготовки проектов дизайна интерьеров.

3D обмеры квартиры методом лазерного сканирования для создания обмерной модели

Квартира московской в новостройке, где мы должны были провести точные 3D обмеры для целей подготовки проекта дизайна интерьеров, была двухкомнатной, общей площадью около 60 квадратных метров с уже выполненным базовым ремонтом, и поэтому на итоговых чертежах нужно было отобразить не только строительные конструкции (как бывает в 90% случаев), но и все уже существующие коммуникации, оконечные элементы электрики и так далее.

На момент проведения обмеров квартира была практически пустой, без мебели, техники и прочих бытовых предметов, и это очень заметно сократило время на полевой этап работ и упростило нашу задачу по обработке данных съёмки и построению обмерных чертежей, поскольку для дизайн-проекта очень важны не только высокая точность чертежей квартиры, но и чёткое указание расположения всех инженерных коммуникаций в этом помещении, таких как розетки, освещение, выключатели, радиаторы, кондиционеры, вентиляция — всё это обязательно отображается на итоговых обмерных чертежах.

Увеличенный фрагмент сшитого облака точек лазерного сканирования двухкомнатной квартиры в Москве в районе ВДНХ Увеличенный фрагмент сшитого облака точек лазерного сканирования двухкомнатной квартиры в Москве в районе ВДНХ

Обмерные работы на данном объекте были осуществлены нашими специалистами методом трёхмерного лазерного сканирования при помощи 3D системы Leica RTC360.

Трёхмерный лазерный сканер Leica RTC360 — высокоточный прибор, дающий возможность в автоматическом режиме проводить до 2 миллионов измерений в секунду, при этом точность каждого единичного измерения для определения пространственных координат составляет 1 мм.

Важной особенностью этого 3D сканера является автоматическое выравнивание точно по горизонту на аппаратном уровне. Сам лазерный сканер может быть наклонён физически, а результаты измерений всё равно получаются точно выравненными по горизонту. Эта функция очень сильно экономит время при перестановке 3D сканера.

Полевой этап работ, на котором было произведено лазерное сканирование квартиры, занял всего два часа, после чего наши специалисты перешли к камеральной стадии работ.

Обмерная точечная 3D модель двухкомнатной квартиры, полученная по данным лазерного сканирования для дизайна Обмерная точечная 3D модель двухкомнатной квартиры, полученная по данным лазерного сканирования для дизайна

Создание обмерных чертежей квартиры со всеми коммуникациями для дизайнеров

На камеральном этапе работ по проекту нашими специалистами была проведена сшивка облаков точек 3D лазерного сканирования, а также их очистка от всех посторонних шумов и лишних объектов. Далее инженеры компании «НГКИ» приступили к подготовке необходимых для дизайнеров интерьера обмерных чертежей квартиры с отображением всех строительных конструкций и всех коммуникаций.

На обработку данных лазерного сканирования, сшивку сканов в единое облако точек и подготовку комплекта обмерных чертежей было затрачено суммарно два рабочих день. Заказчику были переданы сшитые и очищенные облака точек лазерного сканирования в давно привычном всем проектировщикам формате RCP, а также обмерные чертежи данной квартиры в формате DWG (AutoCAD), подготовленные по данным проведённых обмерных работ. Наш Заказчик остался очень доволен всеми полученными результатами и приступил к разработке проекта дизайна интерьера.

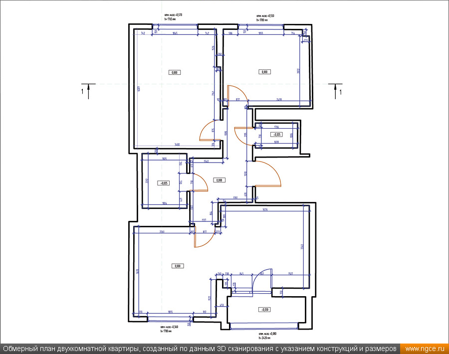
Обмерный план двухкомнатной квартиры, построенный по данным лазерного сканирования с указанием коммуникаций Обмерный план двухкомнатной квартиры, созданный по данным 3D сканирования с указанием конструкций и размеров

Инженерное предприятие «НГКИ» на протяжении многих лет профессионально занимается производством обмерных работ жилых и нежилых помещений для целей подготовки дизайн-проектов оформления внутреннего обустройства. Мы занимаемся обмерами квартир, коттеджей, дачных домов, офисных и торговых помещений, торговых павильонов с точной фиксацией всех коммуникаций. Наши специалисты при проведении обмерных работ применяют технологию лазерного сканирования, которая позволяет быстро получить подробные и точные результаты измерений. На основе результатов лазерного 3D сканирования можно и выполнять подготовку традиционных плоских чертежей, и строить точные твердотельные, полигональные и каркасные трёхмерные модели объектов или их отдельных частей. Более подробное описание всех видов осуществляемых нами работ в этом сегменте рынка вы можете найти на следующих страницах раздела «Услуги» сайта нашей компании:

— «Обмерные работы для проектов в сфере архитектуры, строительства и дизайна интерьеров»;
— «Построение точных 3D моделей зданий и сооружений по данным трёхмерного лазерного сканирования».

Телефоны для связи:
Москва и Московская область:
Регионы РФ (бесплатно):
Обмерные работы и инженерные изыскания с применением технологии лазерного сканирования
Знаковые проекты
Наши публикации
Печатные издания
Наши видеоролики